Элитная недвижимость Москвы Элитная недвижимость Санкт-Петербурга

Испания, Эстепона, Эстепона/Малага

Продажа земельного участка, 801 м2
3 120 000 €
3 895 € за м2
+349 (518) 30202
Площадь
801 м2
Этаж
1 из 3
Задать вопрос
+349 (518) 30202
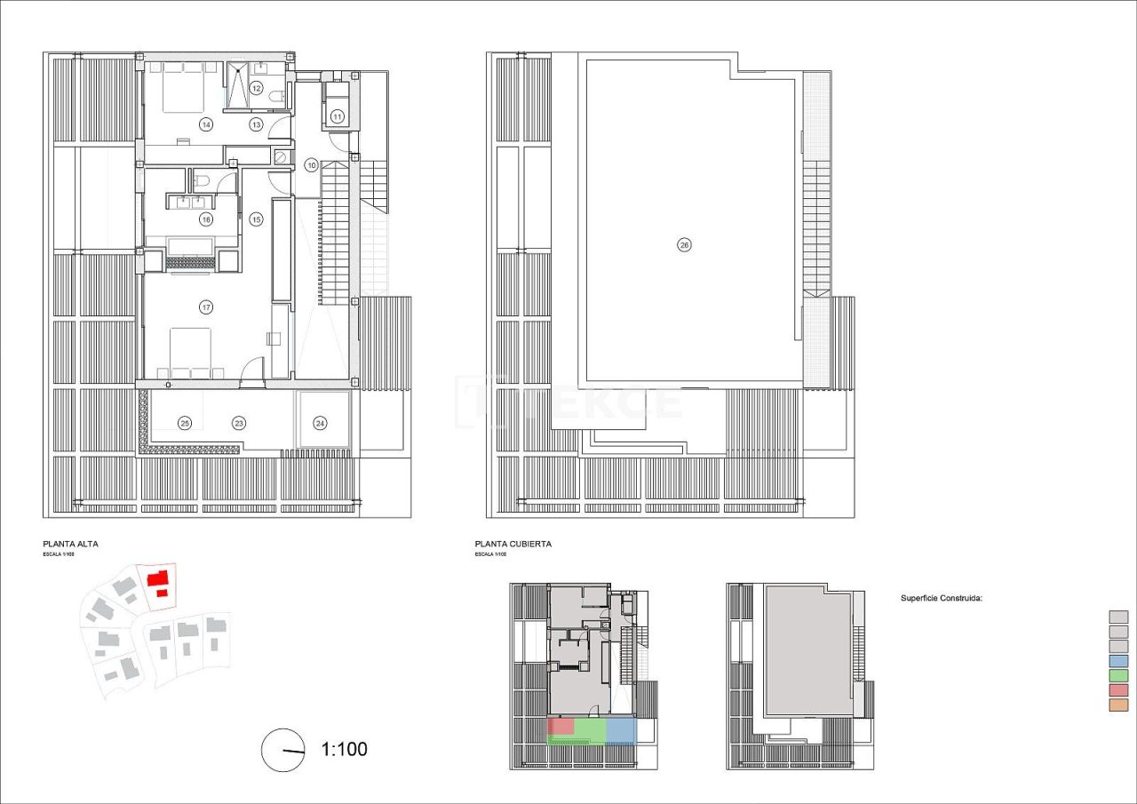
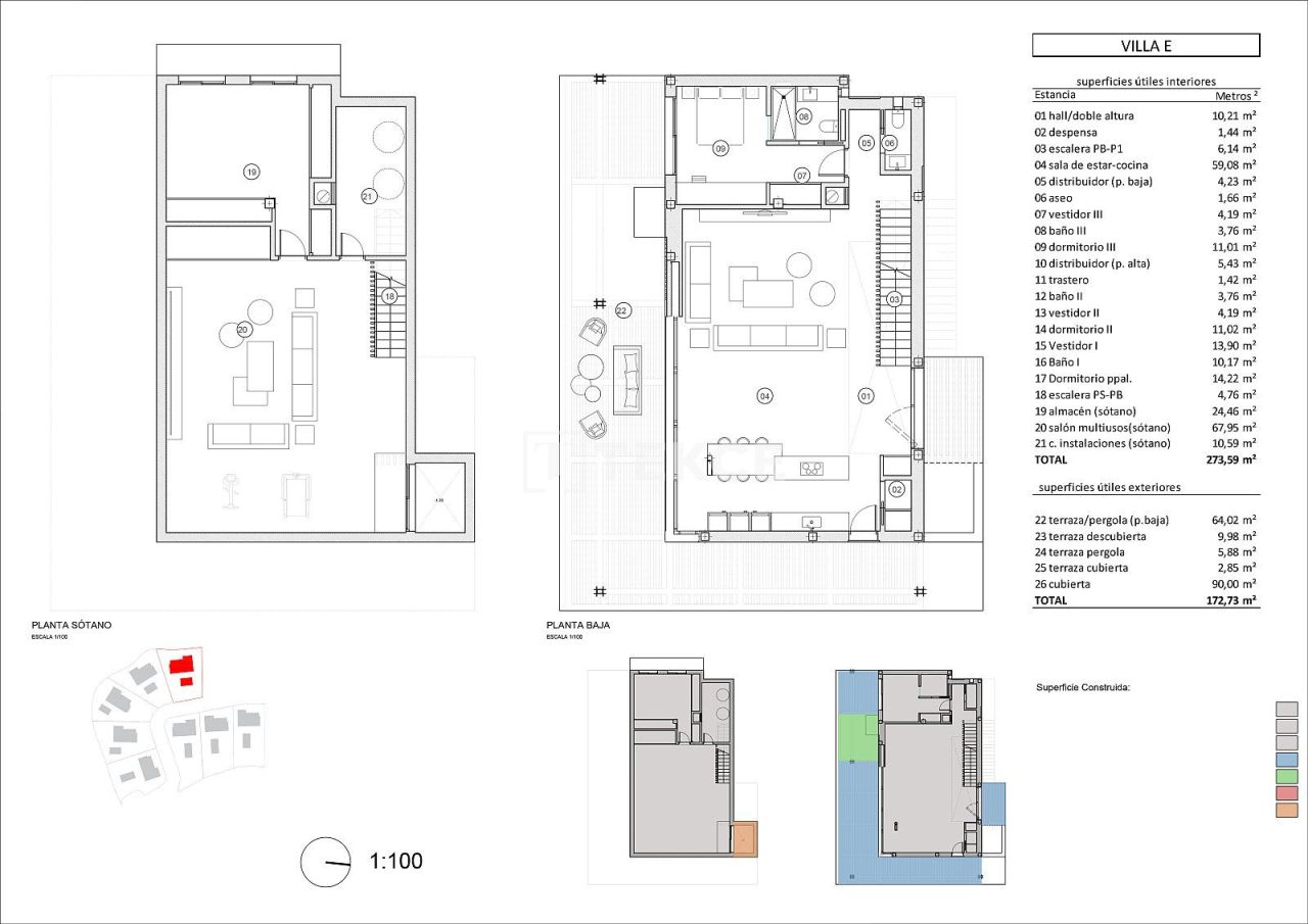
Участки в городской черте для строительства отдельных вилл с бассейнами в Эстепоне, Малага Эстепона, расположенная на живописных берегах Коста-дель-Соль, предлагает уникальное сочетание средиземноморского очарования и современных удобств. Это идеальное место для тех, кто ищет недвижимость в районе с прекрасными пейзажами и непринужденной атмосферой. Город славится яркой культурной жизнью, множеством мероприятий на свежем воздухе, включая гольф, и круглогодичным солнечным климатом. Эстепона — это не просто место для отдыха, но и процветающий рынок недвижимости, который привлекает покупателей со всего мира, мечтающих о жизни в раю у моря. Земельные участки на продажу в Эстепоне находятся в одном из самых престижных и спокойных районов города, всего в 1,5 км от побережья. Здесь, в окружении зелени, вы сможете наслаждаться тишиной и приватностью, при этом имея быстрый доступ ко всем удобствам. Участки расположены в нескольких минутах от гольф-клуба La Resina Golf & Country Club, в шаговой доступности от больницы, международной школы и нового спортивного комплекса. До центра города Эстепона — всего 8 км, до Марбельи и Пуэрто-Бануса — 12 км, а международный аэропорт Малаги находится всего в 60 км. Всего на продажу представлено 8 участков. Предлагаемые участки имеют площадь более 800 м² каждый и поставляются с готовым проектом и разрешением на строительство роскошной виллы с открытым бассейном и садом. Виллы будут иметь площадь около 300 м², которые будут распределены между двумя этажами и подвалом, обеспечивая максимальное пространство и комфорт. Это идеальное место для тех, кто мечтает построить свой дом в одном из самых красивых уголков Коста-дель-Соль. AGP-00894
Подробнее

Подробные характеристики

Возможен онлайн-показ да Возможна удалённая сделка да
Возможна оплата в рублях да ID 30329
Размещено 26 января Тип объекта Земельный участок
Этаж 1 из 3 Площадь участка 8.01 сот
+349 (518) 30202
TEKCE
Размещено более месяца назад
Испания, Эстепона, Эстепона/Малага
+349 (518) 30202
Позвонить

Другие проекты LifeDeluxe

Портал world.lifedeluxe.ru входит в состав масштабного проекта об элитной недвижимости LifeDeluxe. Сайт о дорогой недвижимости Санкт-Петербурга и Ленобласти LifeDeluxe.ru знакомит с лучшими предложениями на первичном и вторичном элитном рынках. Статусные квартиры и загородные дома Москвы И Московской области представлены на сайте msk.lifedeluxe.ru. Мы помогаем сделать правильный выбор.
Все новости

Новости рынка элитной недвижимости

Аналитика и обзоры рынка